Te zware ketel is ook zever want een doorstromer heeft een hoger rendement dan een boiler. De woonkamer blijft dan vaak te koud.
                        Gas Besparen Door Middel Van Cv Tuning Deel Ii Duurzame
Wat is pendelen cv ketel. Wanneer de cv ketel aanslaat en het water gaat verwarmen zal de temperatuur zeer snel stijgen. Dit systeem wordt de centrale verwarming genoemd. Een hre ketel is dus een energiezuinige cv ketel die ook nog stroom opwekt in tegenstelling tot de hr ketel die geen stroom opwekt. Voor de rest wordt de effecten van pendelen nogal zwaar overdreven op dit forum. Zonder verdere beveiligingen zou het water gaan koken wat tot oververhitting kan leiden en permanente beschadiging van de cv ketel. Er bestaan wel ketels die tot 1kw kunnen terug moduleren maar niet te koop in nederland.
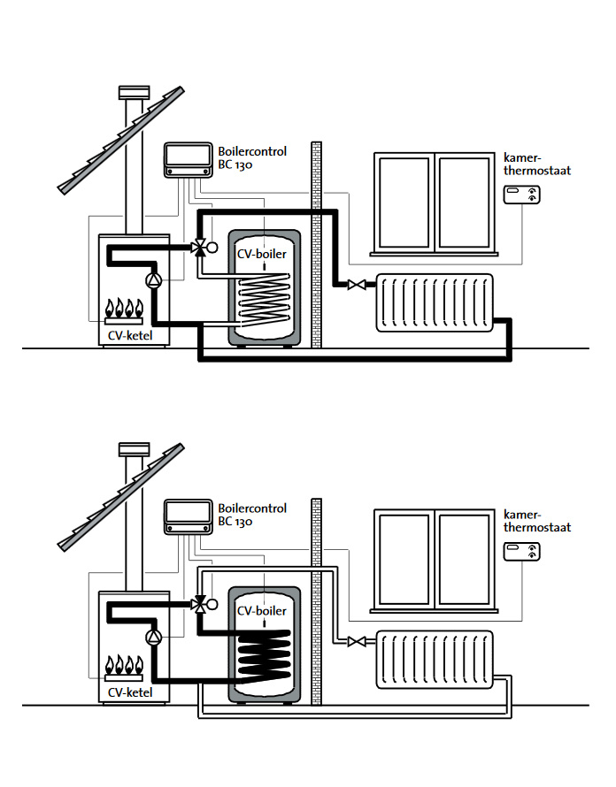
Het pendelen van je cv ketel is een typisch belgisch fenomeen al kom je het elders ook soms wel eens tegen. Het aansluiten van een buffervat kan het pendelen verminderen. Dus na stops van 10 minuten is dan geen pendelen meer. Daarnaast spelen persoonlijke eisen zoals bijvoorbeeld een ligbad vullen en tegelijk douchen mee in de keuze van een cv ketel. Het pendelen van een cv ketel is het kort aan en uit gaan van een cv ketel. Een combiketel zorgt tevens voor het warme tapwater in een woning.
Een cv ketel werkt meestal op aardgas of stookolie en verhit met een brander het water in een. De flowstoring is vervolgens niet meer aanwezig en de elga valt weer in normaal bedrijf en stuurt vervolgens weer de cv ketel aan om aan de huidige verwarmingsvraag te voldoen waardoor vervolgens het pendelen van de cv ketel en ook de elga ontstaat. De oorzaak is niet ver te zoeken gewoon een overberekend verwarmingstoestel dat dus telkens kort aan en uit gaat. De afkorting hre in de naam hre ketel staat voor hoog rendement en elektriciteit. Wat is een hre ketel. Anti pendeltijd instelling voorkomt wat er onder pendelen wordt verstaan.
Dit hangt af van de grootte van het huis en hoe goed dit is geïsoleerd. Tenzij es iemand eindelijk met een studie daarover kan afkomen. Het water in de leidingen en cv ketel staat dan stil. Vermogen is de energie die de cv ketel in een bepaalde tijd kan leveren. Vermogen wordt ook wel de capaciteit van de cv ketel genoemd. Daarnaast bestaan er nog 2 soorten cv ketels.
Dan kan de pomp het water niet meer kwijt. De elga stopt vervolgens met de cv ketel aansturen waardoor de circulatiepomp van de cv ketel stopt. Dit komt vaak omdat de cv ketel niet beter af te stellen is vanwege een extreem lage energievraag. De winst die je eventueel zou verliezen op een pendelende ketel in een ph haal je er zo uit door de winst op sww. Als dit proces zich regelmatig herhaalt dan noemen wij dit in vaktaal pendelen. Een cv ketel of voluit centraleverwarmingsketel is het onderdeel van een centraleverwarmingsinstallatie dat voor warm water zorgt waarmee de verblijven in een pand verwarmd worden.
Een buffervat zou een oplossing kunnen zijn maar kost veel ruimte als deze veel volume heeft. Als je een oude ketel op mazout hebt en je bent wat handig kun je vaak met wat eenvoudige onderdelen het pendelen van de cv ketel en dus het verbruik verminderen. Als de cv watertemperatuur weer wat is gedaald dan slaat de cv ketel even aan maar slaat al snel weer uit omdat weer de maximale cv watertemperatuur is bereikt.
















